
Neubau eines EFH (1) in Auleben
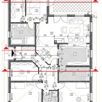
Ein weiterer Bungalow-Neubau in Auleben. Das Haus erhielt ein für Bungalows dieser Art typisches Walmdach. Unsere Leistungen: Gebäudeplanung, Tragwerksplanung, Ausschreibung Rohbau und Bauleitung
Ausführungszeitraum: 2012
Auftraggeber: Privat
Gesamtinvestition: 200.000 EUR
Auftraggeber: Privat
Gesamtinvestition: 200.000 EUR







zu Projekten | Startseite

